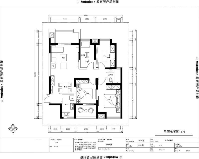
户型:三居
风格:现代
面积:111㎡
客户服务热线:17777816287 华品装饰 - 北京华品装饰专业家装设计、别墅会所装修与设计公司!
版权所有:北京华品装饰有限公司
地址:北京市丰台区华源三里1号楼首科商务酒店8318